深度揭秘韩国绘本馆的名字有哪些好听韩国绘本馆的名字有哪些英文儿童绘本馆设计丨韩国全州·OOZOORO 1216儿童文化活动空间亲子伴读网
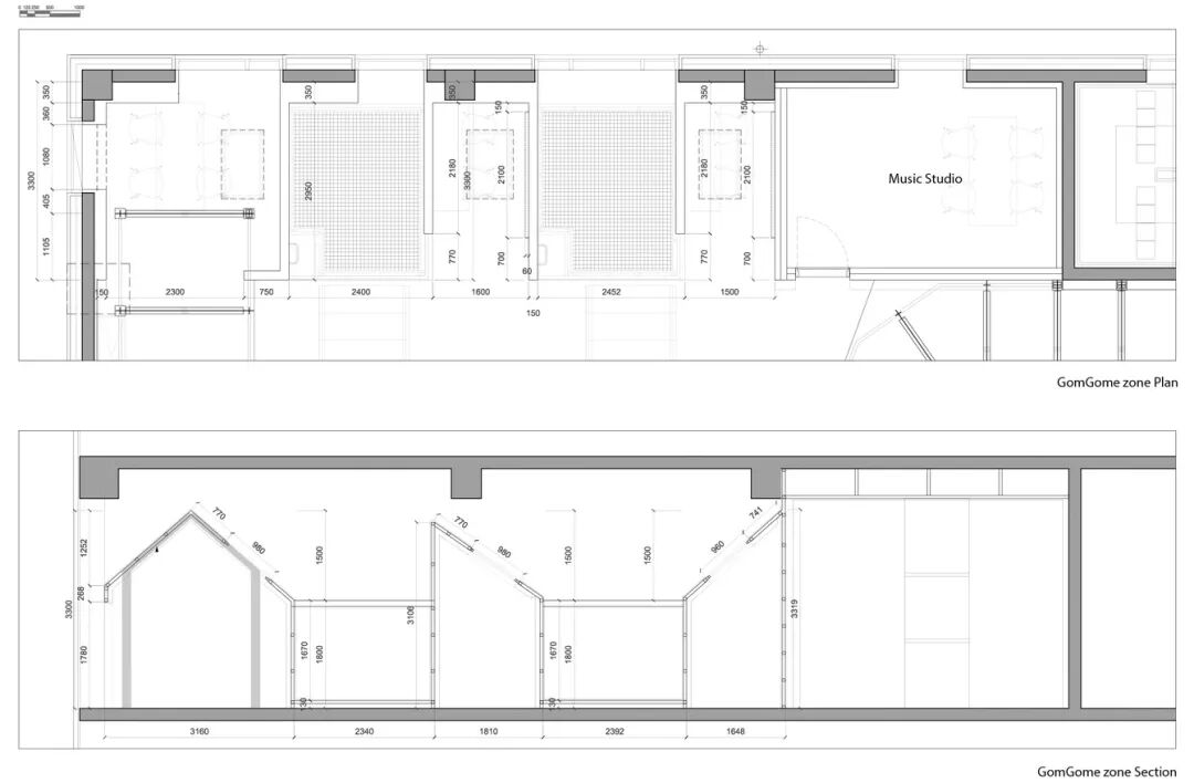
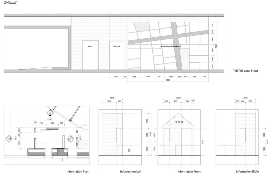
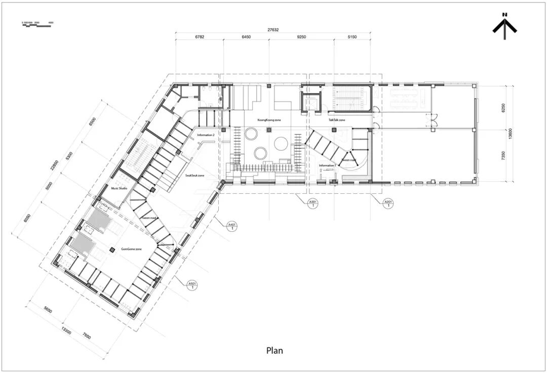
设计元素“小巷”将4个区域连接并统一起来,以便孩子们可以通过它探索各个区域。 ...
版权声明
本页内容为互联网公开发表经人工收集整理而成,我们未提供任何视频、音频以及文档等实体文件分享下载,如有侵权来信即删,邮箱5460xnz@126.com,如你发现或认为链接存在违规侵权,触犯您所在地法律的结果,请立即向所属链接(百度网盘,新浪网盘等文件托管机构)举报。
TAG:
阅读:
扩展阅读:


















